Team Desert Phoenix

Team Desert Phoenix is a diverse team from four institutions  - University of Louisville, American University in Dubai, Higher Colleges of Technology, and American University of Sharjah - poised to address this design challenge while focusing on the seven pillars of this competition, including: Sustainability, Future, Innovation, Clean Energy, Mobility, Smart Solutions, and Happiness. 

VISIT OUR WEBSITE


Project Goals

Team Desert Phoenix will design a home that is optimized to minimize resource use while providing a built environment that promotes a privacy, safety, durability and happiness. Specifically, the design will focus on cost effective next zero energy use by controlling energy demand using thermal mass, phase change materials and natural cooling technologies, while providing sufficient electrical generation via both roll-to-roll PV technologies and where practical, wind based cooling and energy generation.

Additive manufacturing technologies (specifically 3D concrete printing) and modular construction technologies will be used to quickly fabricated and customized to a given users preference. The use of recycled plant based materials will also be investigated to improve the overall sustainability of the design, as well as increase the use of natural material in the home.

In addition, the proposed home design will investigate a variety of technologies that will be designed to minimize the use of water in the home while still maintaining, as much as possible, typical water use patterns. This will be accomplished with careful use of low water use fixtures and appliances, recycling of water and biological recycling in grey water systems.

Finally, energy and water demand will be managed using a variety of smart application and machine learning technologies tied predominately to the occupant smart phones. The basic control system for the home will be trained using whole building system energy simulations and machine learning processes. These control programs will then be calibrated using the occupants as sensors to validate the interior environment comfort levels.  This will allow for measurement and verification of system function and a degree home environmental customization. Applications will also be developed that will continuously monitor the energy efficiency of system and provide guidance (though a smart phone interface) to the home occupants for operation strategies that will reduce energy consumption with minimum environmental impact. Thus, the home becomes a teaching tool for more sustainable living.       

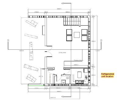
As a cultural imperative, carving significant areas in the design that allows for privacy of subgroups of the home occupants is one of the prime design goals. This will be significant design challenge in such a small space. However, use of light configuration partitions and corridors will be explored in an effort to provide these spaces but still allow efficient heating, cooling and space use.


Interview with Ibrahim Abdulsamad, student at Higher Colleges of Technology, on the SDME 

Team Desert Phoenix - SDME House walk through: